Glenburnie Rd, London, SW17 0SR
Londra’nın güneybatısındaki en cazip emlak noktalarından birinde yer alan Springfield Place, yüksek kaliteli, enerji tasarruflu bir, iki ve üç yatak odalı daire ve evlerden oluşan bir koleksiyon sunmaktadır.
- Şimdi taşınmaya hazır
- Güçlü yerel kira piyasası – %4,8’e varan kira getirisi elde edin
- Earlsfield’ı Tooting Bec’e bağlayan yeni yerleşim köyünün bir parçası
- Tüm evlerde özel bahçe, balkon veya teras
- Geliştirme kapsamında 32 dönümlük yeni park – 2012’den bu yana şehirde oluşturulan en büyük park
- Tooting Bec Metro istasyonundan Londra Köprüsü’ne 18 dakikada ulaşın
- Otopark mevcuttur ve site sakinlerinin kullanımı için Enterprise Car Club
- Michelin Star Chez Bruce, gastro barlar ve Tooting Bec Lido dahil olmak üzere muhteşem yerel olanaklar
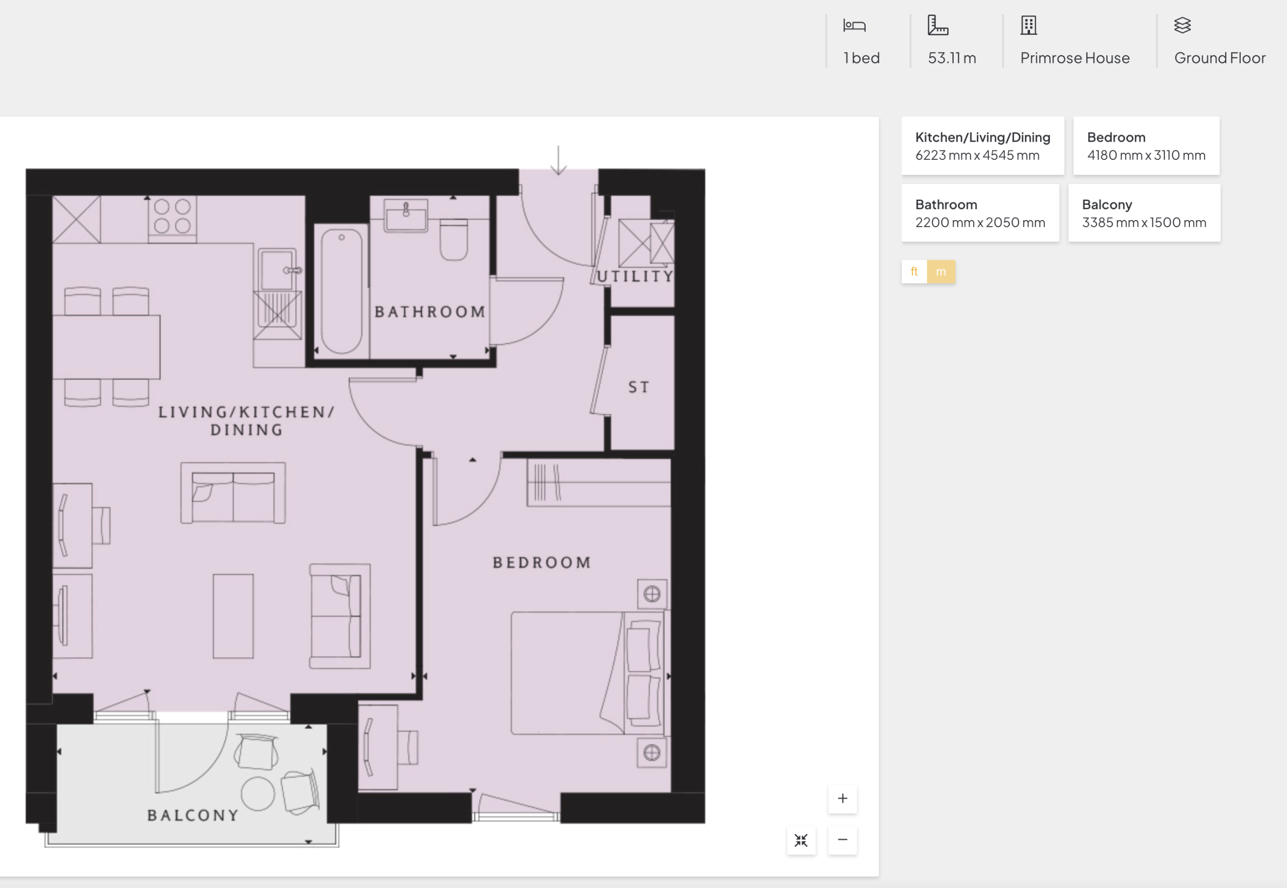
1 yatak odalı daire, £449,000
- Toplam alan: 568 sq ft / 52,75 sq m
- Birinci kat daire
- Bir adet geniş çift kişilik yatak odası
- Güneydoğuya bakan özel balkon
- Entegre cihazlarla donatılmış şık L şeklinde mutfak
- Modern açık plan düzeni
- Tesis içi araba kulübü mevcut
- Tooting Bec Metro istasyonundan Londra Köprüsü’ne 18 dakikada ulaşın
2 yatak odalı daire, £612,000
- Toplam alan: 680 sq ft / 63,15 sq m
- Taşınmaya hazır
- İki adet çift kişilik yatak odası
- Geniş özel veranda
- Entegre cihazlarla donatılmış şık L şeklinde mutfak
- Ana yatak odası için en-suite duş odası ve ayrı banyo
- Tooting Bec Metro istasyonundan Londra Köprüsü’ne 18 dakikada ulaşın
3 yatak odalı ev, £1,074,000
- Toplam alan: 1330 sq ft / 123,59 sq m
- Taşınmaya hazır
- Güneydoğu cepheli özel bahçe
- Entegre cihazlar ve Silestone yüzeylere sahip hazır mutfak
- Elektrikli şarj noktasına sahip iki tahsisli park yeri
- Fiber optik geniş bant
- 32 dönümlük yeni park, aile oyun alanları ve yeni bir okul için hazırlık
- Serbest mülk















