Meadowlark House, Moorhen Drive, Tyrrel Way, Hendon, London, NW9 7QA
Project Overview:
Hendon Waterside is a secure and energy-efficient housing development, constructed alongside the scenic Welsh Harp Reservoir and 170 hectares of open green space. It has earned the ‘Built for a Healthy Life’ award and is centrally located within a £9.6 billion impressive waterfront redevelopment plan in West Hendon.
Situated in a peaceful area of northwest London, next to the magnificent Welsh Harp, we are building secure and energy-efficient homes.
We are halfway through our journey, having constructed over 1,000 of the planned 2,000 new one, two, and three-bedroom homes that have earned the ‘Built for a Healthy Life’ award.
Key Features:
- Projected rental yields of up to 5.7% (Benham & Reeves and Foxtons, November 2023)
- Homes ready to move into this summer
- A 5-minute walk to Hendon Station
- 19 minutes to St Pancras International and 25 minutes to Blackfriars
- 8 minutes by tube to Hampstead and 22 minutes by car to Wembley
- 38 local Ofsted schools rated as ‘Outstanding’
- Live next to 170 hectares of green space
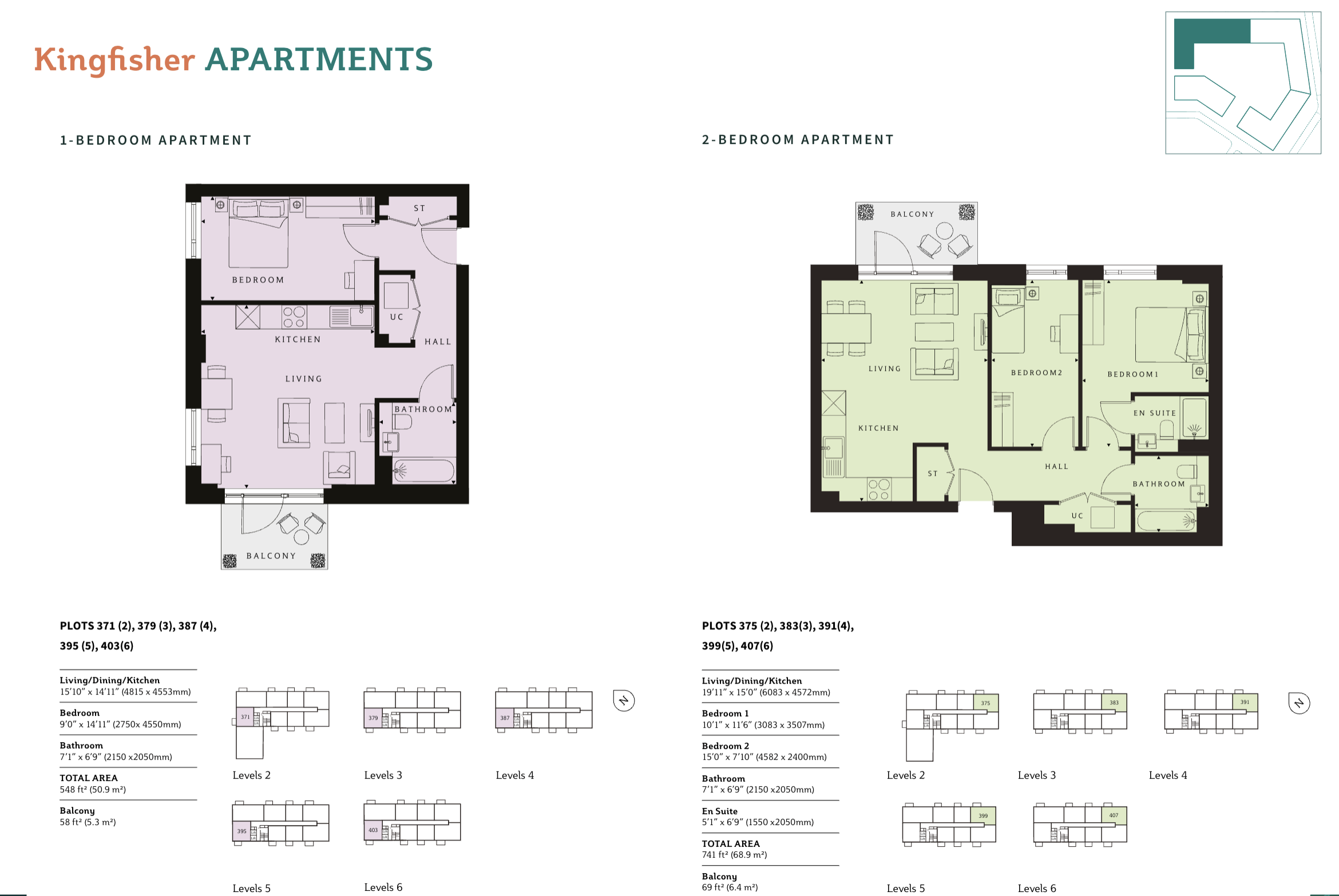
- Comprising 1, 2, and 3-bedroom apartments.












