Nestles Avenue, Hayes, Middlesex, UB3 4QF
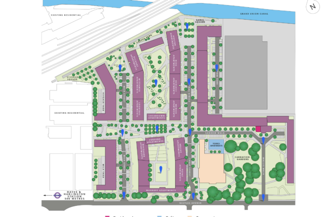
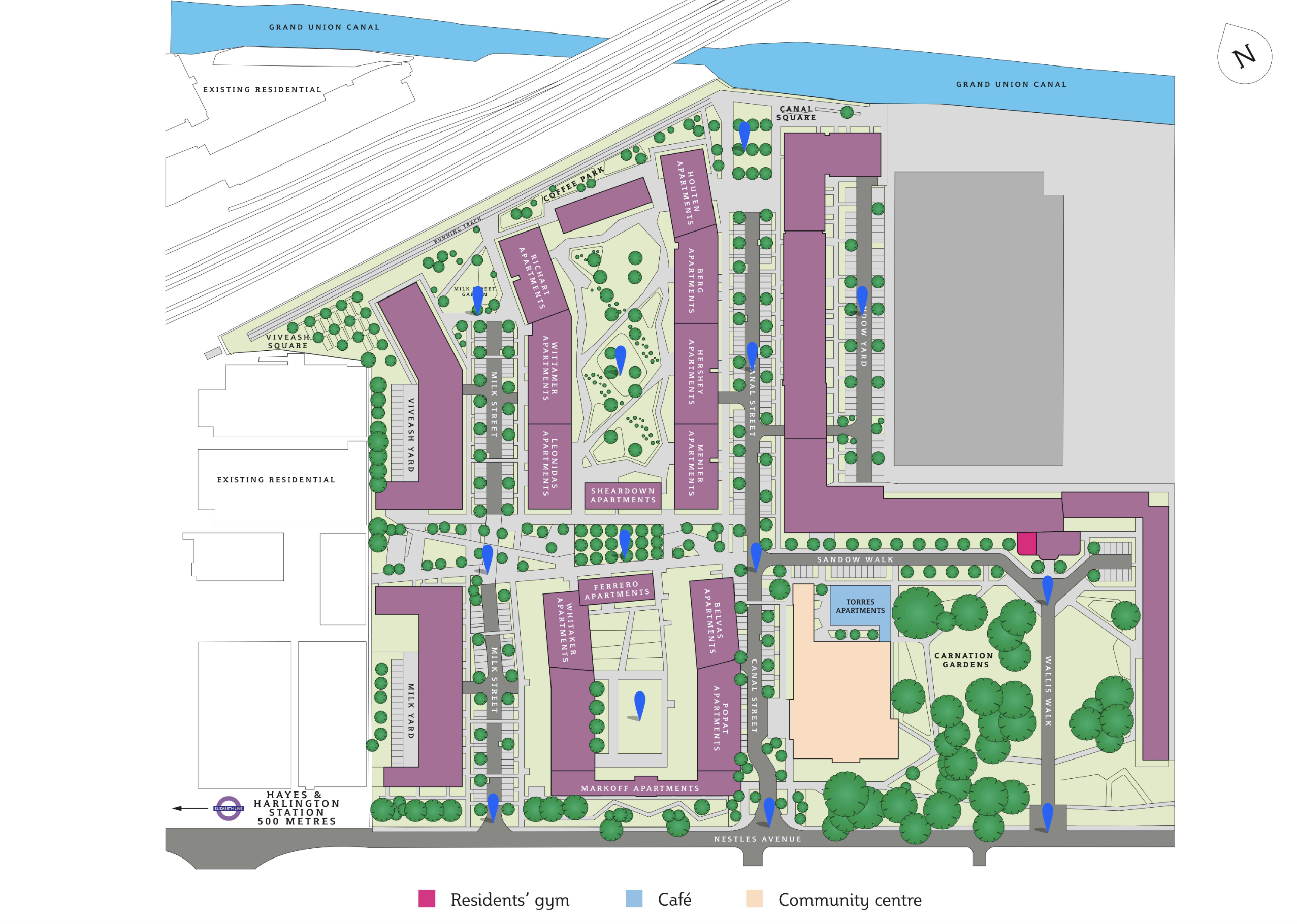
Located alongside the iconic Grand Union Canal and surrounded by 9 acres of green space, Hayes Village is an exciting new community in West London.
The last remaining homes in Barnett Apartments
Homes ready to move into now
Studio, 1, 2, and 3-bedroom apartments starting from £329,000
Achieve rental yields of up to 5.9% when leasing our homes (Benham & Reeves and Foxtons, May 2023)
Reach Paddington in 20 minutes and Bond Street in 24 minutes via the Elizabeth Line
Awarded the ‘Built for a Healthy Living’ honor
Explore over 9 acres of green space at Hayes Village
Studio apartment, £329,000
The latest phase of homes in Hayes Village
Increase your deposit by £16,450 with Deposit Boost
One-bedroom on the tenth floor
9-minute walk to Hayes & Harlington Station
Total area: 408 sq ft (38 sq m)
1-bedroom apartment, £348,000
Buy now with a deposit of £17,700 using Deposit Lock
One-bedroom home on the ground floor
Average rental yield of 5.9% (Benham & Reeves and Foxton’s, May 2023)
West-facing 28ft private open terrace
Total area: 545 sq ft (51 sq m)
2-bedroom apartment, £490,000
The last of our homes in Hayes Village
Increase your deposit by £24,500 with Deposit Boost, speak with a Sales Consultant
Two-bedroom home on the fifth floor
Spacious open-plan living area
Total area: 721 sq ft (67 sq m)
3-bedroom apartment, £559,000
Buy this home with a 5% deposit of £27,800 using Deposit Lock
17ft balcony overlooking landscaped gardens
Three-bedroom apartment on the eighth floor
Hayes Park School just a short drive away
Total area: 857 sq ft (80 sq m)

















